Atelier te KORTRIJK (8500)

€ 1.024.835

Prijs
:
€ 1.024.835
Adres
:
Walle 113, 8500 KORTRIJK
Bewoonbare opp.
:
749 m²
Perceel breedte
:
20 m
Bouwjaar
:
2024
G-score
:
Klasse A
P-score
:
Klasse A
Verwarming
:
Warmtenet
Aansluiting waterleiding
:
Ja
Keuken
:
Niet meegedeeld
Info en bezoek: +32 (0)56 24 38 12



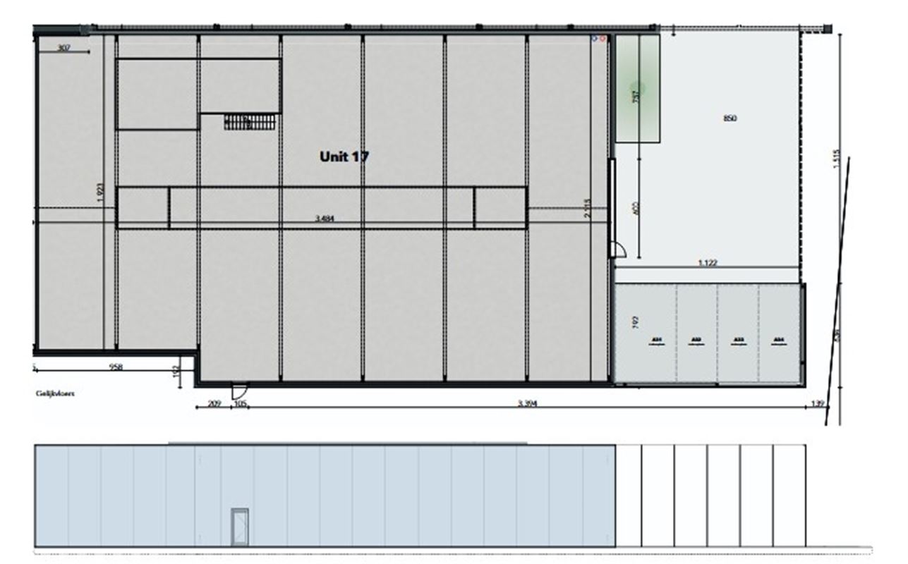
Gelegen op het prachtige project "WALLE" vinden we deze ruime loods met een bruikbare oppervlakte van 794m²

Project "Walle" is een unieke site, zowel van ligging als qua uitstraling, en is een toonbeeld van duurzame reconversie. De voormalige fabriekssite werd volledig en duurzaam gerenoveerd (oa. geothermie) en ademt karakter.

De loods heeft een breedte van 21m en een diepte van 34m en beschikt over een inpandig kantoor en 8 parkeerplaatsen. het gebouw heeft een vlotte bereikbaarheid en beschikt over een functionele laad -en loszone en een grote sectionale toegangspoort.

Meer info of een bezoek: info@century21viaplus.be of 056/24.38.12

Google kaart
De kaart vergroten
Uitzicht op straat